S’ha aprovat la segona modificació del projecte de les obres de la fassina
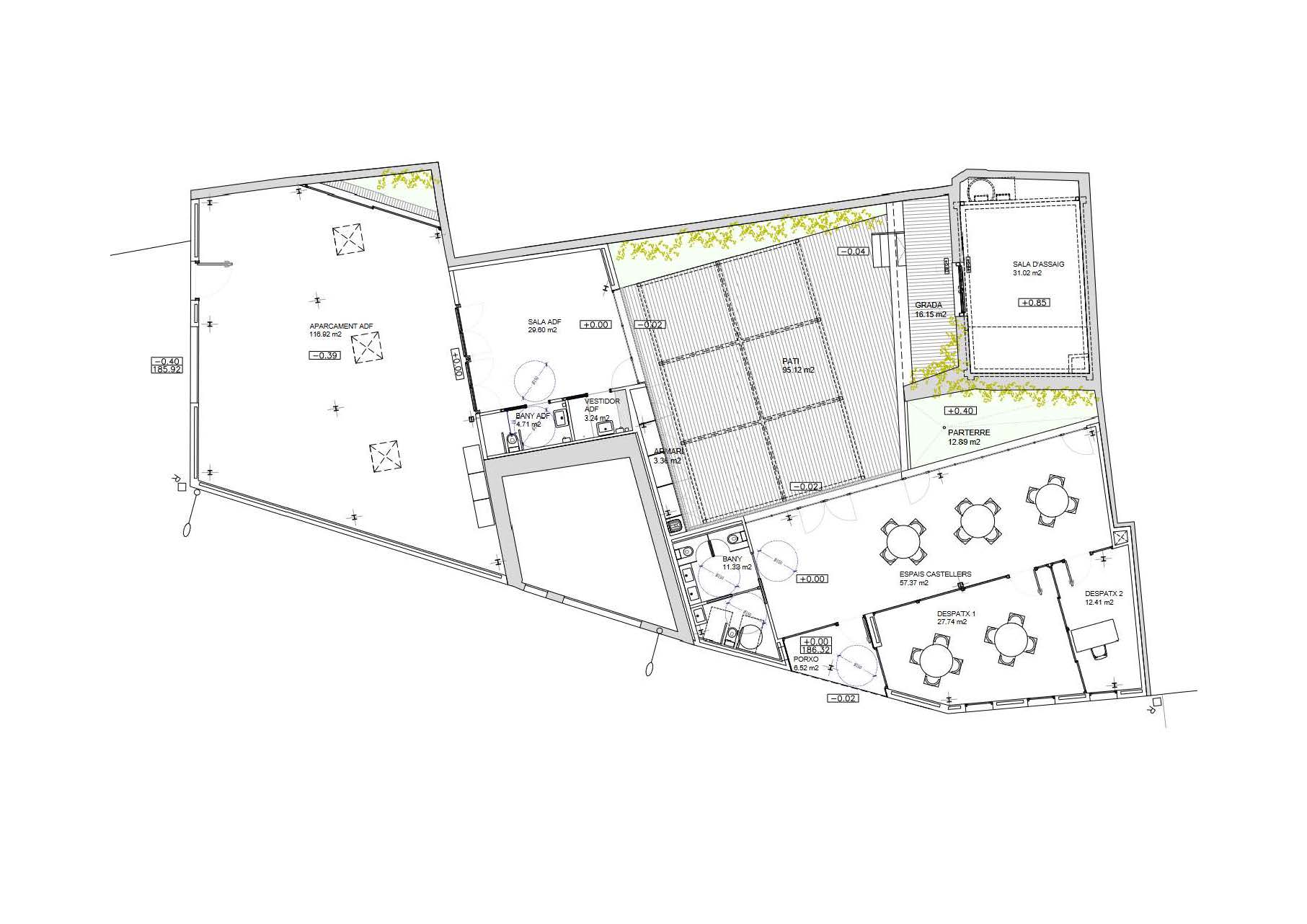
La Junta de Govern del 27 de maig ha aprovat, a petició de les regidories d’Urbanisme, Cultura i Medi Ambient, la segona modificació del projecte de les obres de la fassina amb l’objectiu d’ampliar el pati interior i modificar el local de la colla castellera i l’espai per a l’ADF Clot de Bou.
El passat mes de desembre de 2023 es va fer una primera modificació del projecte per afegir-hi obres no incloses en el projecte que, segons explica l’equip de govern “no es podien detectar fins que van començar les obres de la torre de la fassina”. Aquestes incloïen: recalçar la fonamentació dels dos murs de càrrega exterior de la torre, reforços estructurals i estintolaments. Ara, s’ha aprovat una segona modificació del projecte per ampliar el pati interior i modificar els altres dos espais, és a dir, el local per a la colla castellera i l’espai per a l’ADF.
El cost total de les obres, amb aquestes modificacions incloses, ascendeix a 783.057,12€ (IVA inclòs) i està previst que les obres finalitzin a finals del mes de juliol.
Aquest punt de l’ordre del dia era amb competències del Ple delegades a la Junta de Govern. Amb l’objectiu de garantir la publicitat d’aquest punt, l’explicació i l’aprovació d’aquest es va gravar i podeu veure el vídeo en aquest enllaç: https://actes.bisbalpenedes.com/session/sessionDetail/8a8080848acca6ef018fbe2f0ea500b4
CASTELLANO | La Junta de Gobierno ha aprobado, a petición de las concejalías de Urbanismo, Cultura y Medio Ambiente, la segunda modificación del proyecto de las obras de la ‘fassina’ con el objetivo de ampliar el patio interior y modificar el local de la colla castellera y el espacio para la ADF Clot de Bou.
El pasado mes de diciembre del 2023 se hizo una primera modificación del proyecto para añadir obras no incluidas en el proyecto que, según explica el equipo de gobierno “no se podían detectar hasta que empezaron las obras de la torre de la fassina”. Estas incluían: recalzar la cimentación de los dos muros de carga exterior de la torre, refuerzos estructurales y entibaciones. Ahora, se ha aprobado una segunda modificación del proyecto para ampliar el patio interior y modificar los otros dos espacios, es decir, el local para la colla castellera y el espacio para la ADF.
El coste total de las obras, con estas modificaciones incluidas, asciende a 783.057,12€ (IVA incluido) y está previsto que las obras finalicen a finales del mes de julio.
Este punto del orden del día era con competencias del Pleno delegadas a la Junta de Gobierno. Con el objetivo de garantizar la publicidad de este punto, la explicación y la aprobación de este se grabó y podéis ver el vídeo en este enlace: https://actes.bisbalpenedes.com/session/sessionDetail/8a8080848acca6ef018fbe2f0ea500b4









