S’aprova inicialment el projecte de construcció i rehabilitació de “la fassina”
Una part de l’edificació serà el futur local de la Colla Castellera de la Bisbal del Penedès i, l’altra, un magatzem per a la brigada municipal
La Junta de Govern local del dilluns 11 d’abril va aprovar inicialment el projecte de construcció de “la fassina”, redactat per EDDAR Arquitectura, SLP, amb un import per a l’execució de l’obra de 732.360,16 euros (IVA inclòs).
L’antiga fassina és un edifici que l’Ajuntament va adquirir l’abril de 2019 i que, antigament, s’havia destinat a la fabricació de licors destil·lats i aiguardent. La part de més alçada, amb un total de 15 metres, és una torre que sobresurt del perfil del nucli urbà de la Bisbal del Penedès i que forma part de l’skyline del municipi. Aquesta, es destinarà a la Colla Castellera de la Bisbal del Penedès. La resta d’edificacions, van ser enderrocades el febrer de 2021 amb l’objectiu de dur a terme el projecte que ara s’ha aprovat inicialment i que inclou la construcció d’un edifici de planta baixa per ser destinat, per una banda, com a magatzem de la brigada i, per l’altra, com a local per a la colla castellera. Paral·lelament, la rehabilitació integral de la torre permetrà que es destini a espai d’assaig per a la colla.
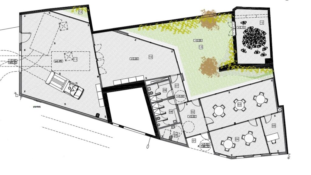
Els espais que inclou el projecte són:
- Magatzems per a la brigada: es construiran dos magatzems en planta baixa, de 112,60m2, 52,50m2 i vestidors de 16,30m2. Aquests espais inclouran tres claraboies per a l’entrada de llum natural.
- Torre de la fassina: s’enderrocarà la coberta de la torre i es repicaran tots els revestiments interiors i exteriors. També s’enderrocaran les estructures de fusta existents a l’interior, inclosa l’escala i les baranes i el paviment existent. La coberta de la torre serà una claraboia per permetre l’entrada de llum natural. La superfície d’aquest espai serà de 30,50m2.
- Local per a la colla castellera: tindrà un total de 82,40m2, dividits en tres sales: 42,30m2, 27,80m2 i 12,30m2. Les parets divisòries seran de vidre. La paret que donarà al pati estarà formada per finestres des de les quals es podran albirar el pati i la torre de la fassina.
- Pati: quedarà un pati interior -entre la torre de la fassina i els locals construïts- de 91,70m2.

El projecte de construcció i rehabilitació de la fassina se sotmetrà a informació pública durant un període de 30 dies des de l’endemà de la seva publicació al Butlletí Oficial de la Província de Tarragona. Una vegada aprovat definitivament, ja es podrà aprovar la licitació de les obres, l’execució de les quals es preveu en un termini de sis mesos.

CASTELLANO
Se aprueba inicialmente el proyecto de construcción y rehabilitación de “la fassina”.
Una parte de la edificación será el futuro local de la Colla Castellera de la Bisbal del Penedès y, la otra, un almacén para la brigada municipal
La Junta de Gobierno local del lunes 11 de abril aprobó inicialmente el proyecto de construcción de la fassina, redactado por EDDAR Arquitectura, SLP, con un importe para la ejecución de la obra de 732.360,16 euros (IVA incluido).
La antingua fassina es un edificio que el Ayuntamiento adquirió en abril del 2019 y que, antiguamente, se había destinado a la fabricación de licores destilados y aguardiente. La parte de más altura, con un total de 15 metros, es una torre que sobresale del perfil del núcleo urbano de la Bisbal del Penedès y que forma parte del skyline del municipio. Esta se destinará a la Colla Castellera de la Bisbal del Penedès. El resto de edificaciones, fueron derruidas en febrero de 2021 con el objetivo de llevar a cabo el proyecto que ahora se ha aprobado inicialmente y que incluye la construcción de un edificio de planta baja para ser destinado, por un lado, como almacén de la brigada y, por el otro, como local para la colla castellera. Paralelamente, la rehabilitación integral de la torre permitirá que se destine a espacio de ensayo para la colla.
Los espacios que incluye el proyecto son:
- Almacenes para la brigada: se construirán dos almacenes en planta baja, de 112,60m2, 52,50m2 y vestidores de 16,30m2. Estos espacios incluirán tres claraboyas para la entrada de luz natural.
- Torre de la fassina: se derruirá la cubierta de la torre y se repicarán todos los revestimientos interiores y exteriores. También se derruirán las estructuras de madera existentes en el interior, incluida la escalera y las barandas y el pavimento existente. La cobertura de la torre será una claraboya para permitir la entrada de luz natural. La superficie de este espacio será de 30,50m2.
- Local para la colla castellera: tendrá un total de 82,40m2, divididos en tres salas: 42,30m2, 27,80m2 y 12,30m2. Las paredes divisorias serán de cristal. La pared que dará al patio estará formada por ventanas desde las cuales se podrán divisar el patio y la torre de la fassina.
- Patio: quedará un patio interior -entre la torre de la fassina y los locales construidos- de 91,70m2.
El proyecto de construcción y rehabilitación de la fassina se someterá a información pública durante un periodo de 30 días desde el día siguiente de su publicación en el Boletín Oficial de la Provincia de Tarragona. Una vez aprobado definitivamente, ya se podrá aprobar la licitación de las obras, la ejecución de las cuales se prevén en un plazo de seis meses.









