La Junta de Govern ha aprovat inicialment la modificació del projecte de remodelació del pavelló poliesportiu municipal (fases 1.1. i 1.2.)
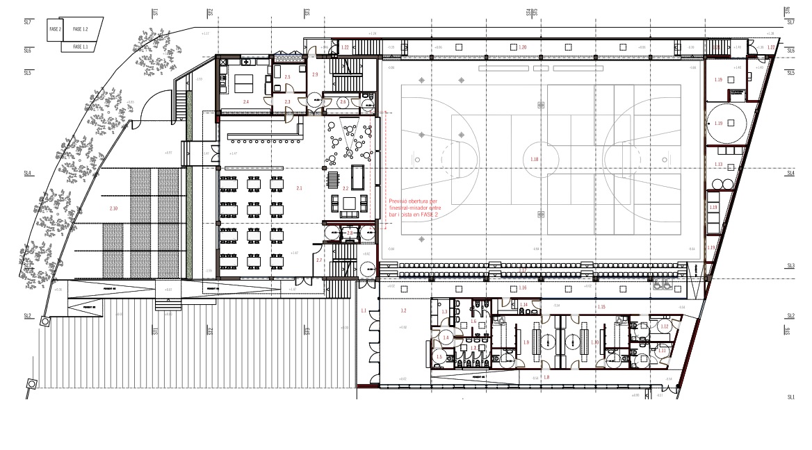
Imatge de la fase 1 del poliesportiu municipal (projecte modificat)
La Junta de Govern del dilluns 28 de març ha aprovat, inicialment, la modificació del projecte de remodelació i ampliació del pavelló poliesportiu municipal en les fases 1.1. i 1.2. La modificació consisteix en la revisió dels amidaments, el pressupost i els plànols i estarà exposada al públic durant 30 dies i, en cas que no es presentin al·legacions, s’entendrà com a aprovada definitivament. El pas següent serà licitar les obres.
L’alcaldessa de la Bisbal del Penedès i responsable de l’àrea d’Urbanisme, Agnès Ferré, ha explicat que “l’octubre de 2021 el Club Siglo XX va presentar un recurs contenciós administratiu contra l’Ajuntament de la Bisbal del Penedès, de fet ja és el tercer que presenta contra el projecte o les obres del poliesportiu municipal. Segons l’entitat, les obres de rehabilitació afecten una part de la finca que l’entitat tenia llogada i que l’Ajuntament no té cap títol jurídic per afectar una part de les que utilitzen per fer les obres de millora. A més, l’entitat demanava que l’Ajuntament no pogués fer les obres en aquesta part que deien que estava afectada. El gener de 2022 va arribar la denegació, per part del Jutjat, de les mesures cautelars que demanava l’entitat, que consistien en què l’Ajuntament no comencés les obres fins que es resolgués el contenciós. Actualment, estem a l’espera de la resolució del contenciós, però s’ha decidit que la gran obertura proposada en el mur de càrrega de separació entre el pavelló i el bar s’executi en la fase 2 del projecte. Aquesta és la modificació corresponent als amidaments i plànols: deixar per a la fase 2 fer la gran obertura entre el pavelló i el bar”.
Quant a la revisió del pressupost, la Junta de Govern del 14 de febrer de 2022 va declarar deserta la licitació de les obres de la fase 1 del poliesportiu municipal. Ferré ha explicat que “el motiu de la retirada de les ofertes per part de les nou empreses que es van presentar a la licitació és la pujada dels preus dels materials de construcció dels darrers mesos”. Per tot plegat, s’ha contractat la revisió de preus amb el redactor del projecte amb l’objectiu de tornar a licitar les obres. El projecte que es va aprovar el 2020 tenia un pressupost d’1.256.563,51€ (IVA inclòs) per a la primera fase. Amb els preus actualitzats, l’import de la fase 1 del projecte ascendeix a 1.568.806,18€.

CASTELLANO | La Junta de Gobierno del lunes 28 de marzo ha aprobado, inicialmente, la modificación del proyecto de remodelación y ampliación del pabellón polideportivo municipal en las fases 1.1. y 1.2. La modificación consiste en la revisión de las mediciones, el presupuesto y los planos y estará expuesta al público durante 30 días y, en caso de que no se presenten alegaciones, se entenderá como aprobada definitivamente. El siguiente paso será licitar las obras.
La alcaldesa de la Bisbal del Penedès y responsable del área de Urbanismo, Agnès Ferré, ha explicado que “en octubre de 2021 el Club Siglo XX presentó un recurso contencioso administrativo contra el Ayuntamiento de la Bisbal del Penedès, de hecho ya es el tercero que presenta contra el proyecto o las obras del polideportivo municipal. Según la entidad, las obras de rehabilitación afectan una parte de la finca que la entidad tenía alquilada y que el Ayuntamiento no tiene ningún título jurídico para afectar una parte de las que se utilizan para hacer las obras de mejora. Además, la entidad solicitaba que el Ayuntamiento no pudiese hacer las obras en esta parte que decían que estaba afectada. En enero de 2022 llegó la denegación, por parte del Juzgado, de las medidas cautelares que solicitaba la entidad, que consistían en que el Ayuntamiento no empezase las obras hasta que se resolviese el contencioso. Actualmente, estamos a la espera de la resolución del contencioso, pero se ha decidido que la gran apertura propuesta en el muro de carga de separación entre el pabellón y el bar se ejecute en la fase 2 del proyecto. Esta es la modificación correspondiente a las mediciones y planos: dejar para la fase 2 hacer la gran apertura entre el pabellón y el bar”.
En cuanto a la revisión del presupuesto, la Junta de Gobierno del 14 de febrero de 2022 declaró desierta la licitación de las obras de la fase 1 del polideportivo municipal. Ferré ha explicado que “el motivo de la retirada de las ofertas por parte de las nueve empresas que se presentaron a la licitación es la subida de los precios de los materiales de construcción de los últimos meses”. Por todo ello, se ha contratado la revisión de precios con el redactor del proyecto con el objetivo de volver a licitar las obras. El proyecto que se aprobó en el 2022 tenía un presupuesto de 1.256.563,51€ (IVA incluido) para la primera fase. Con los precios actualizados, el importe de la fase 1 del proyecto asciende a 1.568.806,18€.









