S’obre el període de licitació de les obres de remodelació del poliesportiu municipal (fase 1)
S’obre el període de licitació de les obres de remodelació del poliesportiu municipal (fase 1). La licitació és electrònica i el termini per presentar proposicions per part d’empreses va del 29 de desembre de 2020 al 25 de gener de 2021 a les 13h.
La Junta de govern local del passat dilluns 14 de desembre va aprovar la licitació de la fase 1 de les obres de remodelació del poliesportiu municipal, mitjançant procediment obert -convocant la seva licitació- i aprovar el plec de clàusules administratives particulars que han de regir la contractació, així com els seus annexos.
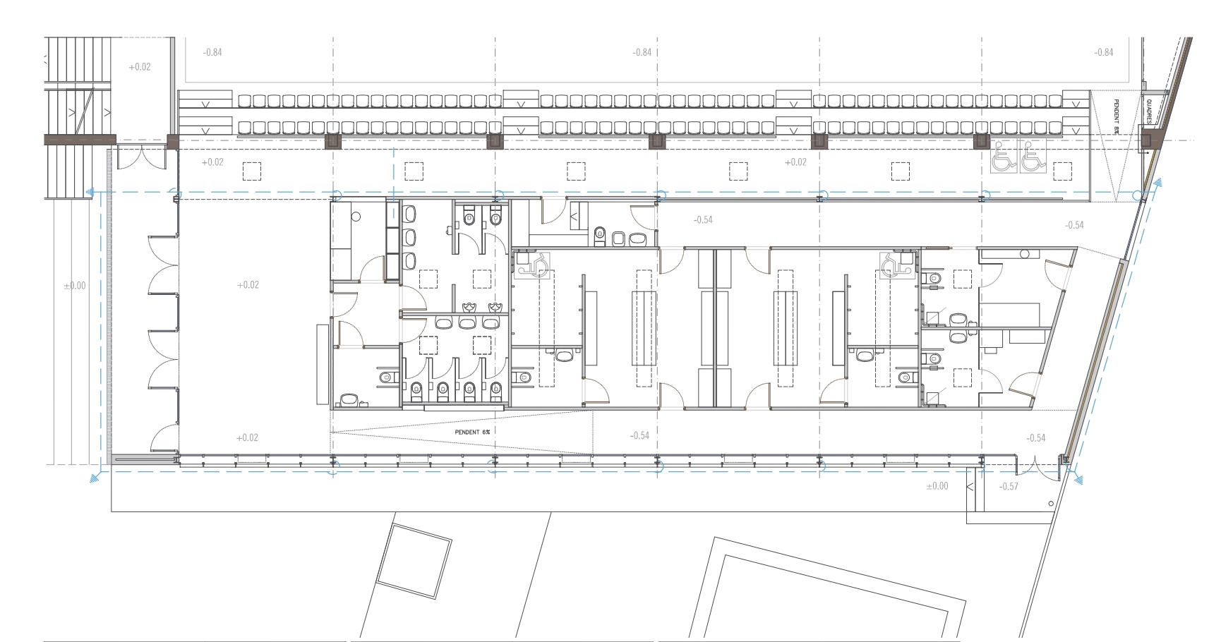
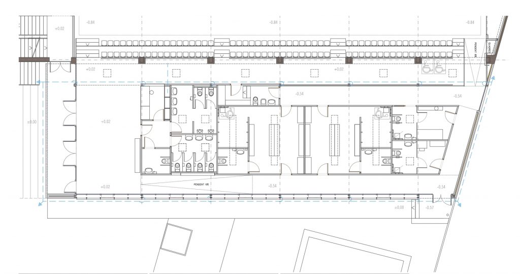
L’import total de la licitació de la fase 1 és d’1.256.563,51€ amb l’IVA inclòs i la durada prevista de les obres és de 18 mesos. La licitació contempla la construcció d’una edificació annexa al pavelló amb una superfície total de 364,60m2 que va annexada al pavelló, on actualment hi ha les barbacoes. Aquest nou edifici és d’una sola planta i conté un porxo d’accés (de 23,60m2 útils), el vestíbul des d’on s’accedeix directament a les grades (de 46m2 útils), l’administració i control d’accés, els serveis higiènics per al públic, els 2 vestidors per als equips, el vestidor dels tècnics i àrbitres, la infermeria, el local de neteja, els 2 passos (peus bruts i peus nets) i l’accés a grades.
Tant el plec de clàusules administratives com el plec de prescripcions tècniques es poden consultar en aquest enllaç: https://contractaciopublica.gencat.cat/ecofin_pscp/AppJava/notice.pscp?reqCode=viewCn&idDoc=74362195&lawType=
Enllaç al perfil del contractant: https://contractaciopublica.gencat.cat/ecofin_pscp/AppJava/notice.pscp?reqCode=searchCn&reqPhase=Cn&pagingPage=0&idCap=31849028
CASTELLANO | Se abre el periodo de licitación de las obras de remodelación del polideportivo municipal (fase 1). La licitación es electrónica y el plazo para presentar proposiciones por parte de empresas va del 29 de diciembre de 2020 al 25 de enero de 2021 a las 13h.
La Junta de gobierno local del pasado lunes 14 de diciembre aprobó la licitación de la fase 1 de las obras de remodelación del polideportivo municipal, mediante procedimiento abierto –convocando su licitación- y aprobar el pliego de cláusulas administrativas particulares que han de regir la contratación, así como sus anexos.
El importe total de la licitación de la fase 1 es de 1.256.563,51€ con el IVA incluido y la duración prevista de las obras es de 18 meses. La licitación contempla la construcción de una edificación anexa al pabellón con una superficie total de 364,60m2 que va anexada al pabellón, donde actualmente están las barbacoas. Este nuevo edificio es de una sola planta y contiene un porche de acceso (de 23,60m2 útiles), la administración y control de acceso, los servicios higiénicos para el público, los 2 vestidores para los equipos, el vestidor de los técnicos y árbitros, la enfermería, el local de limpieza, los 2 pasos (pies sucios y pies limpios) y el acceso a gradas.
Tanto el pliego de cláusulas administrativas como el pliego de prescripciones técnicas se pueden consultar en este enlace: https://contractaciopublica.gencat.cat/ecofin_pscp/AppJava/notice.pscp?reqCode=viewCn&idDoc=74362195&lawType=
Enlace al perfil del contratante: https://contractaciopublica.gencat.cat/ecofin_pscp/AppJava/notice.pscp?reqCode=searchCn&reqPhase=Cn&pagingPage=0&idCap=31849028













